5 Tips to Consider BEFORE you Buy or Renovate an Older Home
As Canada turns 150 this year, many of the homes throughout downtown Halifax and Dartmouth are celebrating a similar mile-stone. These beautiful old homes are unique and have plenty of character. They’re in great neighbourhoods, close to downtown, universities, parks and the waterfront. The mature trees and larger lots make these homes very desirable. However, these homes often come with some compromises like: smaller rooms and windows, limited closet or storage space, electrical panels not able to support our modern technology, etc.
But don’t discount these gems just yet! With a little help from Case Design/Remodeling, we can transform your beautiful old home into a functional and practical space as well.Â
Here are some things to consider:
Learning about the history of your home or the time period, can help you discover some interesting design features and make informed design decisions. It’s a good idea to preserve as many of the original details like moldings, hardware, doors, etc. as you can. You fell in love with this home for its unique character and charm, so it would be a shame to get rid of hundred-year-old craftsmanship. Also, keep in mind resale value and why future home owners might choose this home. It can be fun to mix the old with the new, incorporating your own unique personality. Case designers are here to help blend styles and find the right balance for your home. We prepare a 3-D design of your project to give you a solid idea of the finished space and how the products will work together.
We’ve been remodeling older homes in Metro Halifax for over 10 years and have plenty of design and construction solutions to share. Click here to set up a free consultation, we’ll help you get the home you’ve been dreaming of.
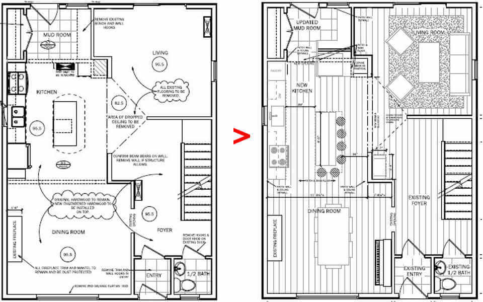
Evaluating the House:
You need to have a good idea of what shape the house is currently in. Have experts examine the plumbing, electrical systems, and overall structure of the home, including roof and windows. It’s much easier to repair things at the beginning of the project, before you’ve added aesthetic finishing touches. For example, jacking up the basement to repair foundation issues, will have an impact on a brand-new kitchen with its glass front cabinets and tile flooring. Knowing what updates are needed can help with planning and setting budgets.Interior Space Planning:
Planning is key. Older homes often had small rooms and many loadbearing walls because materials couldn’t easily support large spaces. Today’s trend is removing walls, creating bright, open spaces and uninterrupted sightlines. Load bearing walls can be removed, but the building still needs to be supported. An engineer will need to review the plans to determine what new supports are needed.
Energy Efficiency:
Renovating your home gives you the opportunity to update energy-hogs and replace them with energy efficient solutions. Consider updating appliances, adding new insulation, new windows, and exterior doors. There are also government incentives that can help lower your future energy costs, that are worth looking into.Exterior Planning:
Any new additions need to tie into the existing home properly, both in construction and in aesthetics. You don’t want any additions to look like an afterthought. A new second story, garage or covered front porch can give you some much needed extra space, but they need to be well thought-out and designed to complement the homes style. Consider complimentary products or similar finishes. Modern details can definitely be added, as long as the architectural details and lines remain consistent.
Interior Design:
Learning about the history of your home or the time period, can help you discover some interesting design features and make informed design decisions. It’s a good idea to preserve as many of the original details like moldings, hardware, doors, etc. as you can. You fell in love with this home for its unique character and charm, so it would be a shame to get rid of hundred-year-old craftsmanship. Also, keep in mind resale value and why future home owners might choose this home. It can be fun to mix the old with the new, incorporating your own unique personality. Case designers are here to help blend styles and find the right balance for your home. We prepare a 3-D design of your project to give you a solid idea of the finished space and how the products will work together.
We’ve been remodeling older homes in Metro Halifax for over 10 years and have plenty of design and construction solutions to share. Click here to set up a free consultation, we’ll help you get the home you’ve been dreaming of.







.jpg)


